Location appartement T2 à Lyon 02
Description de l'appartement
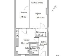
VISITE VIRTUELLE EXC LUSIVEMENTDécouvrez ce bel appartement de 48,54 m² situé au cœur du quartier résidentiel et commerçant d'Ainay, à deux pas de la Place Gailleton et du Pont de l'Université. Situé au 2ᵉ étage avec ascenseur d'un immeuble de caractère, ce T2 vous séduira par son sol en pierre authentique et ses grandes fenêtres qui baignent l'espace de lumière naturelle. Le bien se compose d'une entrée avec rangements optimisés, d'une belle pièce de vie agrémentée d'une cheminée décorative, d'une chambre au calme, d'une cuisine avec plan bar et d'une salle de bain avec WC. Les amateurs de cyclisme apprécieront la présence d'un local à vélo dans l'immeuble.Ce logement bénéficie d'un chauffage individuel au gaz et d'une eau chaude individuelle électrique. L'eau froide collective est incluse dans les charges.
À propos du prix
Loyer (charges comprises)
Frais d'agence estimés pour un appartement d’une surface moyenne (48 m²) dans votre zone de recherche.
Ces honoraires correspondent à maximum 15 € du mètre carré (état des lieux inclus) tel que défini dans la loi Alur.
Les + de cette location
Découvrez votre quartier
Lyon 02 (69002)
Diagnostic de Performance Énergétique
Diagnostic de Performance Énergétique : D
Le Diagnostic de Performance Énergétique (DPE) indique la consommation d'énergie d'un logement et son impact en termes d'émissions de gaz à effet de serre.
La note va de A (logement très économe) à G (logement très énergivore).
Cette information vous aide à estimer vos futures dépenses d'énergie et l'impact environnemental du logement.
| Note | Consommation (kWh/m²/an) | Description |
|---|---|---|
| A | ≤ 70 | Logement très économe |
| B | 71 à 110 | Logement économe |
| C | 111 à 180 | Logement assez économe |
| D | 181 à 250 | Logement moyen |
| E | 251 à 330 | Logement peu économe |
| F | 331 à 420 | Logement énergivore |
| G | ≥ 421 | Logement très énergivore |
Émission de Gaz à Effet de Serre : NA
L’indicateur GES (Gaz à Effet de Serre) mesure la quantité de gaz à effet de serre émise par le logement, principalement liée au chauffage, à l’eau chaude et à la production d’énergie.
La note va de A (peu d’émissions) à G (fortes émissions).
Cette information vous permet d’évaluer l’impact environnemental du logement.
| Note | Émission (kg CO²/m²/an) | Description |
|---|---|---|
| A | ≤ 6 | Faible émission de GES |
| B | 7 à 11 | Émission modérée de GES |
| C | 12 à 30 | Émission moyenne de GES |
| D | 31 à 50 | Émission assez élevée de GES |
| E | 51 à 70 | Émission élevée de GES |
| F | 71 à 100 | Émission très élevée de GES |
| G | ≥ 101 | Forte émission de GES |