Location appartement T3 à Toulon
Description de l'appartement
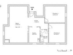
LOCATION 100% EN LIGNE VIA FONCIA.COM - Visualisez le bien comme si vous y étiez grâce à notre visite virtuelle Toulon ouest- secteur claret, dans l'immeuble le clair logis, un appartement de type T3 de 71m2 au 3ᵉ étage avec ascenseur, comprenant une grande entrée, un séjour avec un comptoir central, une cuisine indépendante aménagée et partiellement équipée (plaque à gaz et hotte électrique), deux chambres, une salle de bains et un wc.L'appartement est climatisé.Une cave en sous-sol complete le logement. le bien est proche de la gare, des commerces et des transports.Cette location vous intéresse ? N?attendez pas pour déposer votre dossier de candidature en ligne sur le site www.foncia.com / Rubrique Location / indiquez la ville recherchée / filtrer « loc 100% en ligne ». A très vite sur foncia.com !
À propos du prix
Loyer (charges comprises)
Frais d'agence estimés pour un appartement d’une surface moyenne (71 m²) dans votre zone de recherche.
Ces honoraires correspondent à maximum 15 € du mètre carré (état des lieux inclus) tel que défini dans la loi Alur.
Les + de cette location
Découvrez votre quartier
Toulon (83000)
Diagnostic de Performance Énergétique
Diagnostic de Performance Énergétique : E
Le Diagnostic de Performance Énergétique (DPE) indique la consommation d'énergie d'un logement et son impact en termes d'émissions de gaz à effet de serre.
La note va de A (logement très économe) à G (logement très énergivore).
Cette information vous aide à estimer vos futures dépenses d'énergie et l'impact environnemental du logement.
| Note | Consommation (kWh/m²/an) | Description |
|---|---|---|
| A | ≤ 70 | Logement très économe |
| B | 71 à 110 | Logement économe |
| C | 111 à 180 | Logement assez économe |
| D | 181 à 250 | Logement moyen |
| E | 251 à 330 | Logement peu économe |
| F | 331 à 420 | Logement énergivore |
| G | ≥ 421 | Logement très énergivore |
Émission de Gaz à Effet de Serre : NA
L’indicateur GES (Gaz à Effet de Serre) mesure la quantité de gaz à effet de serre émise par le logement, principalement liée au chauffage, à l’eau chaude et à la production d’énergie.
La note va de A (peu d’émissions) à G (fortes émissions).
Cette information vous permet d’évaluer l’impact environnemental du logement.
| Note | Émission (kg CO²/m²/an) | Description |
|---|---|---|
| A | ≤ 6 | Faible émission de GES |
| B | 7 à 11 | Émission modérée de GES |
| C | 12 à 30 | Émission moyenne de GES |
| D | 31 à 50 | Émission assez élevée de GES |
| E | 51 à 70 | Émission élevée de GES |
| F | 71 à 100 | Émission très élevée de GES |
| G | ≥ 101 | Forte émission de GES |