Chambre en colocation à Nantes
Description de la chambre
🏡 Colocation – 4 chambres – Nantes (La Harlière)
Appartement récemment rénové.
🚋 Transports à 2 pas : arrêt Romanet (tram 1 + C20) juste devant l’immeuble.
✅ 10 minutes du centre-ville et du centre commercial Atlantis
🆕 Nouvelle ligne 7 prévue (liaison CHU / Zone commerciale Atout Sud)
---
🛋️ L’appartement
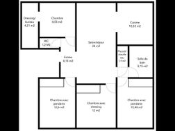
Appartement T5 de 96 m²,entièrement rénové et équipé , situé au 1er étage d’une résidence calme et sécurisée.
Il est composé d’un grand séjour, cuisine équipée, salle de bain, WC séparé, et 4 chambres privatives.
💡 Inclus dans les charges (140 €/mois) :
* Eau
* Électricité
* Chauffage au sol
* Internet fibre
* Service de ménage dans les parties communes de l'appartement
* Charges de copropriété
📦 Loyer total : 495 € / mois par chambre (355 € + 140 € charges)
📝 APL compatibles
---
🛏️ Détail des chambres – tout confort
Chaque chambre est entièrement meublée et équipée, prête à vivre :
* Lit double avec draps, couverture, oreillers
* Télé connectée (smart TV)
* Petit bureau de travail + chaise
* Rangements (armoire ou penderie)
🔹 Chambre 1 – 12,48 m²
🔹 Chambre 2 – 12,6 m²
🔹 Chambre 3 – 12 m²
🔹 Chambre 4 – 8,62 m² + dressing/bureau de 4,21 m² attenant
🧼 Salle de bain : baignoire à remous, rangements, ...
🍳 Cuisine : Tout équipée ( lave-vaisselle, lave linge séchant, etc .... )
🛋️ Salon / salle à manger de 26 m² : Smart Tv (181cm), canapé (poltronesofà), etc ...
---
📩 Intéressé(e) ?
Contacte-moi par mail avec une courte présentation : âge, situation, ce que tu recherches dans une coloc.
📅 Visites possibles – emménagement possible dès maintenant.
À propos du prix
Loyer (charges comprises)
Les + de cette location
Découvrez votre quartier
Nantes (44000)
Diagnostic de Performance Énergétique
Diagnostic de Performance Énergétique : D
Le Diagnostic de Performance Énergétique (DPE) indique la consommation d'énergie d'un logement et son impact en termes d'émissions de gaz à effet de serre.
La note va de A (logement très économe) à G (logement très énergivore).
Cette information vous aide à estimer vos futures dépenses d'énergie et l'impact environnemental du logement.
| Note | Consommation (kWh/m²/an) | Description |
|---|---|---|
| A | ≤ 70 | Logement très économe |
| B | 71 à 110 | Logement économe |
| C | 111 à 180 | Logement assez économe |
| D | 181 à 250 | Logement moyen |
| E | 251 à 330 | Logement peu économe |
| F | 331 à 420 | Logement énergivore |
| G | ≥ 421 | Logement très énergivore |
Émission de Gaz à Effet de Serre : D
L’indicateur GES (Gaz à Effet de Serre) mesure la quantité de gaz à effet de serre émise par le logement, principalement liée au chauffage, à l’eau chaude et à la production d’énergie.
La note va de A (peu d’émissions) à G (fortes émissions).
Cette information vous permet d’évaluer l’impact environnemental du logement.
| Note | Émission (kg CO²/m²/an) | Description |
|---|---|---|
| A | ≤ 6 | Faible émission de GES |
| B | 7 à 11 | Émission modérée de GES |
| C | 12 à 30 | Émission moyenne de GES |
| D | 31 à 50 | Émission assez élevée de GES |
| E | 51 à 70 | Émission élevée de GES |
| F | 71 à 100 | Émission très élevée de GES |
| G | ≥ 101 | Forte émission de GES |