Chambre en colocation à St Martin d'Hères
Description de la chambre
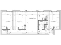
Bonjour, je suis le propriétaire d’une colocation sympa pour 3 étudiant(e)s. Il y a actuellement Lucas (21 ans) et Océane (24 ans) qui sont là depuis 2 ans et encore l'année prochaine. Il reste une chambre de disponible (n°3 sur le plan).
Situé 10 Avenue Gabriel-Péri à 200m du Tram C Péri-Brossolette, l'appartement est meublé en colocation non-solidaire et bien situé pour les étudiants du domaine universitaire de Saint-Martin D'Hères, de la Faculté de médecine et de l'Institut Universitaire de Technologie de Grenoble et aussi du STAPS. Il est à idéalement placé entre le campus universitaire et le centre-ville de Grenoble avec des commerces à proximité.
L'appartement est composé de 3 chambres individuelles qui se ferment à clé, une petite cuisine, un salon-séjour, une salle de bain avec douche, un WC, un grand débarras. Il est entretenu régulièrement. Les fenêtres et volets roulants ont étaient remplacés en 2022. L'immeuble à été rénové en 2023 (façades et isolation par l'extérieur).
Les chambres sont chacune équipée d’un lit (matelas, coussin et housse), d’un bureau avec chaise, d’une table de chevet et d’une penderie avec étagères. La cuisine comprend de nombreux rangements et divers équipements (ustensiles, vaisselles, bouilloire, cafetière). Les toilettes sont séparées de la salle de bain. Des places de parking sont disponibles au pied de l’immeuble. Une cave privée fermée à clé pour votre vélo est disponible en sous-sol via une rampe.
Équipements :
WIFI (Freebox (fibre) + décodeur TV), réfrigérateur 188 litres + congélateur 64 litres, four électrique + trois plaques de cuisson vitrocéramiques, four à micro-ondes, lave-linge 5 kg, aspirateur, douche avec robinet thermostatique, alarme. Le téléphone et la télé ne sont pas fournis mais vous êtes libre d'installer les vôtres.
A proximité :
Tram C Péri-Brossolette et Bus 41 à 200m
Tram B Les Taillées-Universités (1.3km à pied ou par Tram C, Bus 26 et 11)
Bus 21, 23 et 26 à proximité.
Boulangerie (300m)
Géant Casino (700m)
Commerces divers Avenue Amboise Croizat à 400m (Kébab, pizza, informatique, tabac, papeterie, coiffure, pressing, cinéma)
Mc Donald (1400m), KFC (1400m)
Bail :
Colocation étudiante.
Bail individuel en location meublé. Le loyer est de 360€ + 65€ de charges (eau, électricité, chauffage, internet, charges de copropriété). Nous établissons des baux individuels ce qui permet de ne pas se porter caution solidaire des autres colocataires. Vous pouvez monter un dossier à la CAF pour toucher les APL. Caution 1 mois + garants ou garantie Visale. Pas de frais de dossier ou d’agence.
À propos du prix
Loyer (charges comprises)
Les + de cette location
Découvrez votre quartier
Saint-Martin-d'Hères (38400)
Diagnostic de Performance Énergétique
Diagnostic de Performance Énergétique : NA
Le Diagnostic de Performance Énergétique (DPE) indique la consommation d'énergie d'un logement et son impact en termes d'émissions de gaz à effet de serre.
La note va de A (logement très économe) à G (logement très énergivore).
Cette information vous aide à estimer vos futures dépenses d'énergie et l'impact environnemental du logement.
| Note | Consommation (kWh/m²/an) | Description |
|---|---|---|
| A | ≤ 70 | Logement très économe |
| B | 71 à 110 | Logement économe |
| C | 111 à 180 | Logement assez économe |
| D | 181 à 250 | Logement moyen |
| E | 251 à 330 | Logement peu économe |
| F | 331 à 420 | Logement énergivore |
| G | ≥ 421 | Logement très énergivore |
Émission de Gaz à Effet de Serre : NA
L’indicateur GES (Gaz à Effet de Serre) mesure la quantité de gaz à effet de serre émise par le logement, principalement liée au chauffage, à l’eau chaude et à la production d’énergie.
La note va de A (peu d’émissions) à G (fortes émissions).
Cette information vous permet d’évaluer l’impact environnemental du logement.
| Note | Émission (kg CO²/m²/an) | Description |
|---|---|---|
| A | ≤ 6 | Faible émission de GES |
| B | 7 à 11 | Émission modérée de GES |
| C | 12 à 30 | Émission moyenne de GES |
| D | 31 à 50 | Émission assez élevée de GES |
| E | 51 à 70 | Émission élevée de GES |
| F | 71 à 100 | Émission très élevée de GES |
| G | ≥ 101 | Forte émission de GES |