Location appartement T3 à Béziers
Description de l'appartement
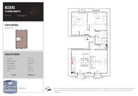
À LOUER : Appartement rénové T3 situé à Béziers, dans le département de l'Hérault, offrant un cadre de vie agréable et pratique. Ce bien, d'une superficie de 48 m², se trouve au premier étage d'un immeuble de trois étages, sans ascenseur. Voir plus
L'appartement se compose de trois pièces, dont deux chambres spacieuses, un salon lumineux d'une superficie de 21,54 m² et une cuisine, aménagée et équipée
Vous apprécierez également la présence de deux balcons, qui offrent un espace extérieur agréable pour profiter des journées ensoleillées.
Situé à proximité de la gare et du centre-ville, facilitant l'accès aux transports en commun et aux commodités locales.
Ce bien est idéal pour ceux qui recherchent un logement confortable, moderne et à proximité de la gare.
N'hésitez pas à nous contacter pour plus d'informations ou pour organiser une visite. Le bien est soumis au statut de la copropriété.
Loyer de 647,00 euros par mois charges comprises dont 60,00 euros par mois de provision pour charges (soumis à la régularisation annuelle).
Soit avec Assurance Habitation et Assistance* ( 24.00 euros ) : 671,00 euros.
Les honoraires charge locataire sont de 533,13 euros ( soit 11,10 euros/m² ) dont 145,53 euros pour état des lieux ( soit 3,03 euros/m² ).
Vous pouvez consulter les barèmes d'honoraires à l'adresse suivante :
https://www.citya.com/agences-immobilieres/beziers-34500/196#bareme-location
Les informations sur les risques auxquels ce bien est exposé sont disponibles sur le site Géorisques : https://www.georisques.gouv.fr. *Service facultatif. Contribution annuelle "attentats" non comprise. Voir conditions en agence.
À propos du prix
Loyer (charges comprises)
Frais d'agence estimés pour un appartement d’une surface moyenne (48 m²) dans votre zone de recherche.
Ces honoraires correspondent à maximum 13 € du mètre carré (état des lieux inclus) tel que défini dans la loi Alur.
Les + de cette location
Découvrez votre quartier
Béziers (34500)
Diagnostic de Performance Énergétique
Diagnostic de Performance Énergétique : NA
Le Diagnostic de Performance Énergétique (DPE) indique la consommation d'énergie d'un logement et son impact en termes d'émissions de gaz à effet de serre.
La note va de A (logement très économe) à G (logement très énergivore).
Cette information vous aide à estimer vos futures dépenses d'énergie et l'impact environnemental du logement.
| Note | Consommation (kWh/m²/an) | Description |
|---|---|---|
| A | ≤ 70 | Logement très économe |
| B | 71 à 110 | Logement économe |
| C | 111 à 180 | Logement assez économe |
| D | 181 à 250 | Logement moyen |
| E | 251 à 330 | Logement peu économe |
| F | 331 à 420 | Logement énergivore |
| G | ≥ 421 | Logement très énergivore |
Émission de Gaz à Effet de Serre : NA
L’indicateur GES (Gaz à Effet de Serre) mesure la quantité de gaz à effet de serre émise par le logement, principalement liée au chauffage, à l’eau chaude et à la production d’énergie.
La note va de A (peu d’émissions) à G (fortes émissions).
Cette information vous permet d’évaluer l’impact environnemental du logement.
| Note | Émission (kg CO²/m²/an) | Description |
|---|---|---|
| A | ≤ 6 | Faible émission de GES |
| B | 7 à 11 | Émission modérée de GES |
| C | 12 à 30 | Émission moyenne de GES |
| D | 31 à 50 | Émission assez élevée de GES |
| E | 51 à 70 | Émission élevée de GES |
| F | 71 à 100 | Émission très élevée de GES |
| G | ≥ 101 | Forte émission de GES |