Location appartement T2 à Nangy
Description de l'appartement
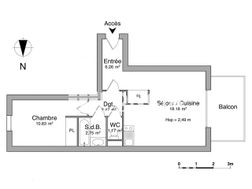
proche accès autoroute résidence au calme avec piscine et gardien 2 places de parkings hall,cuisine ouverte sur séjour, une Chambre, salle de bains, wc<br>La location pourra être déléguée à Foncia Développement et Location.
À propos du prix
Loyer (charges comprises)
Frais d'agence estimés pour un appartement d’une surface moyenne (41 m²) dans votre zone de recherche.
Ces honoraires correspondent à maximum 15 € du mètre carré (état des lieux inclus) tel que défini dans la loi Alur.
Découvrez votre quartier
Nangy (74380)
Diagnostic de Performance Énergétique
Diagnostic de Performance Énergétique : D
Le Diagnostic de Performance Énergétique (DPE) indique la consommation d'énergie d'un logement et son impact en termes d'émissions de gaz à effet de serre.
La note va de A (logement très économe) à G (logement très énergivore).
Cette information vous aide à estimer vos futures dépenses d'énergie et l'impact environnemental du logement.
| Note | Consommation (kWh/m²/an) | Description |
|---|---|---|
| A | ≤ 70 | Logement très économe |
| B | 71 à 110 | Logement économe |
| C | 111 à 180 | Logement assez économe |
| D | 181 à 250 | Logement moyen |
| E | 251 à 330 | Logement peu économe |
| F | 331 à 420 | Logement énergivore |
| G | ≥ 421 | Logement très énergivore |
Émission de Gaz à Effet de Serre : NA
L’indicateur GES (Gaz à Effet de Serre) mesure la quantité de gaz à effet de serre émise par le logement, principalement liée au chauffage, à l’eau chaude et à la production d’énergie.
La note va de A (peu d’émissions) à G (fortes émissions).
Cette information vous permet d’évaluer l’impact environnemental du logement.
| Note | Émission (kg CO²/m²/an) | Description |
|---|---|---|
| A | ≤ 6 | Faible émission de GES |
| B | 7 à 11 | Émission modérée de GES |
| C | 12 à 30 | Émission moyenne de GES |
| D | 31 à 50 | Émission assez élevée de GES |
| E | 51 à 70 | Émission élevée de GES |
| F | 71 à 100 | Émission très élevée de GES |
| G | ≥ 101 | Forte émission de GES |