Location studio avec cuisine équipée à Uzès sans frais d'agence
Description du studio de Monsieur D.
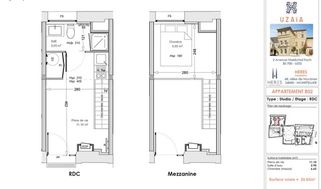
Studio neuf de 21 m2 en RDC dans un immeuble de caractère rénové en face de l'école d'infirmière d'UZES. Bénéficiant d'une cour intérieure paysagée et arborée en face du studio, d'un espace de coworking et d'une salle commune avec Laves linge et sèches linge.
Le studio possède une sdb/wc avec douche à l'italienne, une kitchenette équipée d'une plaque céramique et d'un réfrigérateur et une mezzanine. Le séjour est équipé d'une prise RJ45 et d'une prise télé. Wifi disponible dans toute la résidence.
La résidence est sécurisée avec un système d'interphones.
Idéal pour un etudiant.
À propos du prix
Loyer (charges comprises)
Charges locatives
Montant du dépôt de garantie
Honoraires
Frais d'agence estimés pour un studio d’une surface moyenne (21 m²) dans votre zone de recherche.
Ces honoraires correspondent à maximum 11 € du mètre carré (état des lieux inclus) tel que défini dans la loi Alur.
Les + de cette location
Découvrez votre quartier
Uzès (30700)
Diagnostic de Performance Énergétique
Diagnostic de Performance Énergétique : B
Le Diagnostic de Performance Énergétique (DPE) indique la consommation d'énergie d'un logement et son impact en termes d'émissions de gaz à effet de serre.
La note va de A (logement très économe) à G (logement très énergivore).
Cette information vous aide à estimer vos futures dépenses d'énergie et l'impact environnemental du logement.
| Note | Consommation (kWh/m²/an) | Description |
|---|---|---|
| A | ≤ 70 | Logement très économe |
| B | 71 à 110 | Logement économe |
| C | 111 à 180 | Logement assez économe |
| D | 181 à 250 | Logement moyen |
| E | 251 à 330 | Logement peu économe |
| F | 331 à 420 | Logement énergivore |
| G | ≥ 421 | Logement très énergivore |
Émission de Gaz à Effet de Serre : B
L’indicateur GES (Gaz à Effet de Serre) mesure la quantité de gaz à effet de serre émise par le logement, principalement liée au chauffage, à l’eau chaude et à la production d’énergie.
La note va de A (peu d’émissions) à G (fortes émissions).
Cette information vous permet d’évaluer l’impact environnemental du logement.
| Note | Émission (kg CO²/m²/an) | Description |
|---|---|---|
| A | ≤ 6 | Faible émission de GES |
| B | 7 à 11 | Émission modérée de GES |
| C | 12 à 30 | Émission moyenne de GES |
| D | 31 à 50 | Émission assez élevée de GES |
| E | 51 à 70 | Émission élevée de GES |
| F | 71 à 100 | Émission très élevée de GES |
| G | ≥ 101 | Forte émission de GES |