Location maison F5 avec garage à Simiane Collongue
Description de la maison
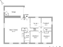
Située à Simiane, sur la Route de Mimet, plus précisément entre Mimet et Simiane, nous vous proposons à la location une villa de type 5 de plain pied avec portail automatique comprenant une entrée , une cuisine aménagée ouverte sur un salon et donnant sur une terrasse, 4 chambres, une salle de bains, un wc , un dressing . Un garage complète le bien offrant un espace pratique pour y stationner un véhicule. A l'extérieur, vous profiterez d'un magnifique grand terrain d'envrion 4000 m2 offrant un cadre verdoyant particulièrement appréciable. La maison est équipée d'un système d'assainssement individuel par fosse sceptique.Les provisions de charges concernent la tonte de la pelouse qui sera effectuée par une entreprise d'entretien des espaces verts et feront l'objet d'une régularisation L'eau froide est à régler directement auprès de société des eaux, la taxe des ordures ménagères est à régler une fois pan an en sus des provisions de charges.Modalité de production d'eau chaude : cumlulus et modalités de production de chauffage : électrique.<br>La location pourra être déléguée à Foncia Développement et Location.
À propos du prix
Loyer (charges comprises)
Frais d'agence estimés pour une maison d’une surface moyenne (99 m²) dans votre zone de recherche.
Ces honoraires correspondent à maximum 15 € du mètre carré (état des lieux inclus) tel que défini dans la loi Alur.
Les + de cette location
Découvrez votre quartier
Simiane-Collongue (13109)
Diagnostic de Performance Énergétique
Diagnostic de Performance Énergétique : C
Le Diagnostic de Performance Énergétique (DPE) indique la consommation d'énergie d'un logement et son impact en termes d'émissions de gaz à effet de serre.
La note va de A (logement très économe) à G (logement très énergivore).
Cette information vous aide à estimer vos futures dépenses d'énergie et l'impact environnemental du logement.
| Note | Consommation (kWh/m²/an) | Description |
|---|---|---|
| A | ≤ 70 | Logement très économe |
| B | 71 à 110 | Logement économe |
| C | 111 à 180 | Logement assez économe |
| D | 181 à 250 | Logement moyen |
| E | 251 à 330 | Logement peu économe |
| F | 331 à 420 | Logement énergivore |
| G | ≥ 421 | Logement très énergivore |
Émission de Gaz à Effet de Serre : NA
L’indicateur GES (Gaz à Effet de Serre) mesure la quantité de gaz à effet de serre émise par le logement, principalement liée au chauffage, à l’eau chaude et à la production d’énergie.
La note va de A (peu d’émissions) à G (fortes émissions).
Cette information vous permet d’évaluer l’impact environnemental du logement.
| Note | Émission (kg CO²/m²/an) | Description |
|---|---|---|
| A | ≤ 6 | Faible émission de GES |
| B | 7 à 11 | Émission modérée de GES |
| C | 12 à 30 | Émission moyenne de GES |
| D | 31 à 50 | Émission assez élevée de GES |
| E | 51 à 70 | Émission élevée de GES |
| F | 71 à 100 | Émission très élevée de GES |
| G | ≥ 101 | Forte émission de GES |